提升機斗輪尾輪出現故障的處理方式
發布日期:2015-06-25 瀏覽次數:
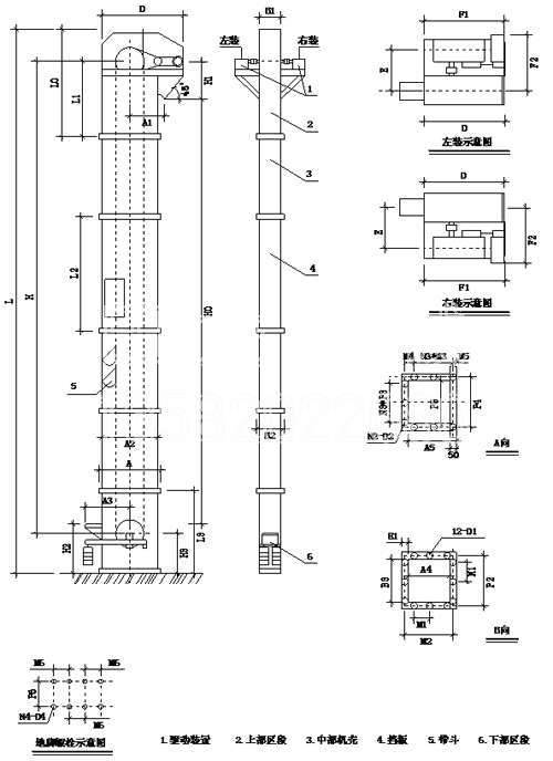
因為提升機的高度非常高,普通的10米左右算小的,高一點的能達到40米,所以運行過程中經常會出現頭輪尾輪安裝不正,不在同一條直線上的問題,遇到這種問題應做如下處理:
首先要找出故障原因,先看頭輪和底輪的傳動軸是否在同一垂直平面內,或是否平行,一般有這樣幾種情況
頭輪和底輪的傳動軸在同一垂直平面內且不平行;兩傳動軸都安裝在水平位置且不在同一垂直平面內;兩傳動軸平行,在同一垂直平面內且不水平一般來講,不管是出現上面哪種原因都會造成對機器的損害,影響正常生產。

處理方式:
1 重新布置底輪并校正機殼。采用吊線的方式,從上到下,依次進行校正;
2 一直調整到整機中心線在1 000 mm高度上垂直偏差不超過2 mm,積累偏差不超過8 mm就可以了。
上面資料由石家莊田龍機械設備有限公司整理,轉發請標示出我公司的網址:www.sjztsj.cn 田龍機械公司是專業制造提升機,NE斗式提升機,NSE斗式提升機,TH,TD皮帶斗式提升機,板鏈提升機,環鏈提升機的專業廠家。
- 上一篇:為什么田龍推薦HL斗式提升機
- 下一篇:NE板鏈提升機
最熱動態
- ● NE系列板鏈式提升機
- ● 斗提機械輸送帶問題處理方法
- ● 垂直提升機試車時要注意什么問題
- ● 掌握以下5點讓你選到合適型號的斗
- ● 膠帶式提升機效率更高
- ● 怎樣讓斗子輸送機多用幾年?
- ● 斗式提升機鏈條更換快速方法
- ● 斗式提升機馬力計算
- ● 斗式提升機工程指南
- ● 斗式提升機結構








13582022680
產品咨詢
關于我們
聯系我們